Wer schon einmal versucht hat, eine Fläche auf der Kastanienallee zu bekommen, weiß: Das passiert nicht oft. Noch seltener wird es, wenn eine Terrasse dabei ist – und noch seltener, wenn diese Terrasse auch wirklich Abendsonne hat. Genau so eine Fläche ist gerade zwischen Oderberger Straße und Schwedter Straße frei geworden – mitten in einem der lebendigsten Abschnitte des Prenzlauer Bergs.
Anzeige: Dieser Beitrag ist ein Advertorial und beinhaltet Werbung
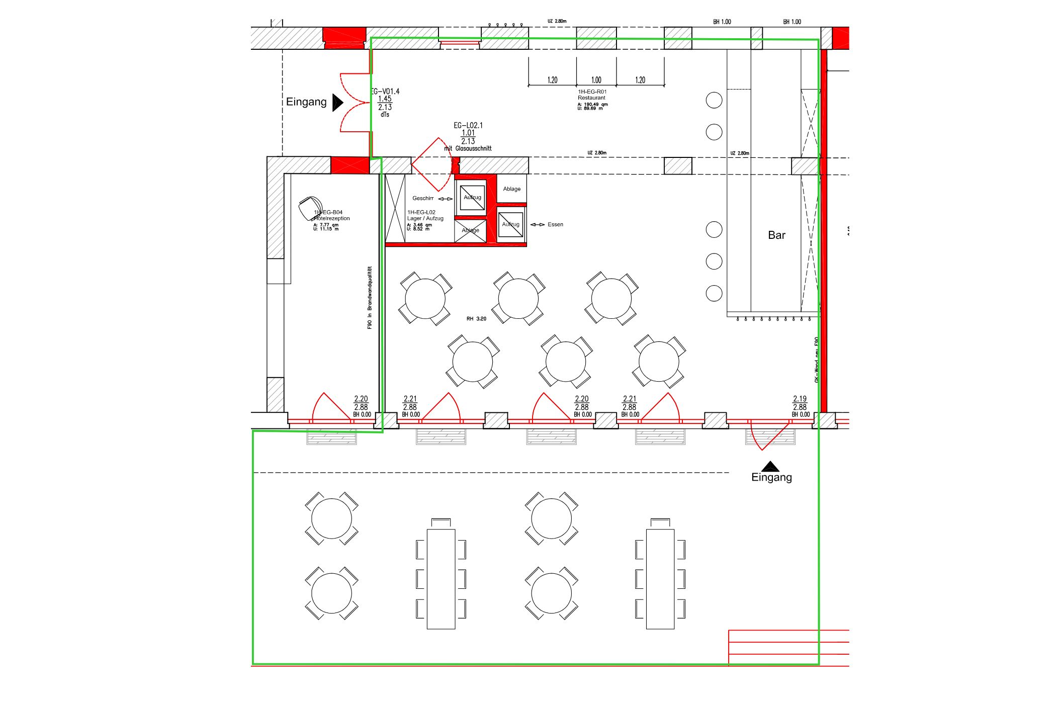
Der Innenraum umfasst rund 102 Quadratmeter mit 3,20 Metern Deckenhöhe und einer breiten Fensterfront zur Straße. Der Raum ist durch einen Unterzug in zwei Bereiche gegliedert, was sich ganz gut für typische Café-Layouts eignet: vorne Sichtbarkeit und Theke, hinten Sitzplätze oder längere Aufenthalte.



Bitte beachten: Dieser Grundriss ist unverbindlich und bildet die Fläche nur schematisch ab
Doch der eigentliche Grund, warum man sich diese Fläche anschauen sollte, liegt draußen.
Eine Terrasse, die ihren Namen verdient
Denn zur Location gehört eine Terrasse mit rund 87 Quadratmetern direkt an der Kastanienallee. Sie liegt auf einem leicht erhöhten Podest und bekommt durch die West-Ausrichtung tatsächlich Sonne bis in den späten Nachmittag und Abend.
Wer die Kastanienallee kennt, weiß: Viele Terrassen auf diesem Abschnitt verschwinden relativ früh im Schatten der Blockrandbebauung. Hier ist das anders. Das bedeutet im Sommer ziemlich genau das Szenario, das auf der Kastanienallee gut funktioniert: Nachmittags Espresso und Kuchen, später Aperitivo, Wein oder Spritz, während die Straße langsam voller wird.

Frequenz kommt hier nicht nur von draußen
Ein Detail, das man nicht unterschätzen sollte: Im selben Gebäude sitzt eine Sprachschule mit rund 100 Mitarbeitenden und etwa 300 Schüler*innen täglich. Das bringt eine ziemlich stabile Grundfrequenz – vom schnellen Kaffee am Morgen bis zu Snacks oder Treffpunkten nach dem Unterricht. Für ein Café oder Deli ist das eine eingebaute Stammkundschaft, bevor überhaupt die Laufkundschaft der Kastanienallee dazu kommt.
Welche Konzepte hier funktionieren könnten
Eine klassische Restaurantküche gibt es in der Fläche nicht – was sie eher zu einem Ort für moderne, schlanke Gastro-Konzepte macht.
Naheliegend wären zum Beispiel:
- Specialty Coffee
- Deli oder Sandwich-Bar
- Patisserie
- Dessert-Bar
- Wine- oder Aperitivo-Bar
Also genau jene Formate, die auf der Kastanienallee ohnehin gut funktionieren.

Warum diese Fläche spannend ist
Am Ende ist es die Kombination aus mehreren Dingen, die in dieser Form selten geworden ist:
- hochfrequentierte Kastanienallee-Lage
- große Terrasse mit Abendsonne
- natürliche Frequenz durch die Sprachschule
- kompakte Cafégröße
Oder anders gesagt: Ein Standort, an dem ein gutes Konzept nicht bei Null anfangen muss.
Wichtige Informationen:
- die monatliche Miete liegt bei EUR 7.900
- Innenraum: 102m², Terrasse: 87m²
- keine vollausgestattete Gastronomieküche
- sehr gute Lage und Anbindung an den ÖPNV
Bei Interesse wenden Sie sich bitte an:
Michael Hess, GLS Campus Berlin
Mail:Telefon: 030 780089 – 558


